Назад

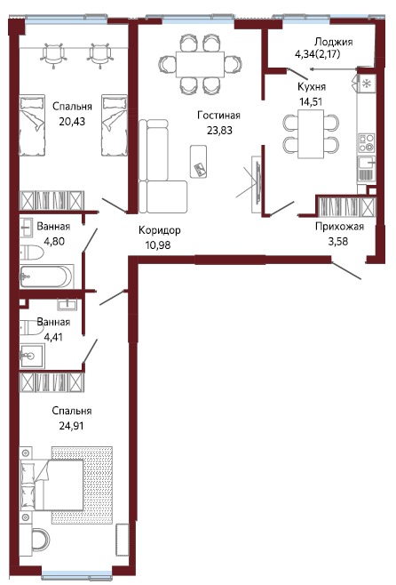
1-комнатная квартира №10

Diamond

Cкачать планировку
  • Статус
    Свободна
  • Площадь
    36,0 м2
  • Комната
    1
  • Этаж
    3
  • Блок
    3